Royal Mint

2017 - 2025

Refurbishment of the Belgian Royal Mint (KMR) into a multifunctional hub including offices, co-living, and horeca

  • retail
  • passive
  • residential
  • office
  • equipment
  • private
  • refurbishment
Site
Boulevard Pacheco 32 1000 Brussels
Client
Befimmo
Structural engineering
WOW engineering
Services engineer
Arcadis
Project Manager
Axxio
Safety, BREEAM & WELL
Bopro
Acoustics
De Fonseca
Technical building control
Seco
Contractor
Louis De Waele
Surfaces
11.634 m² above ground level, 4.724 m² below ground level
Budget
30.500.000 € htva

Complete description

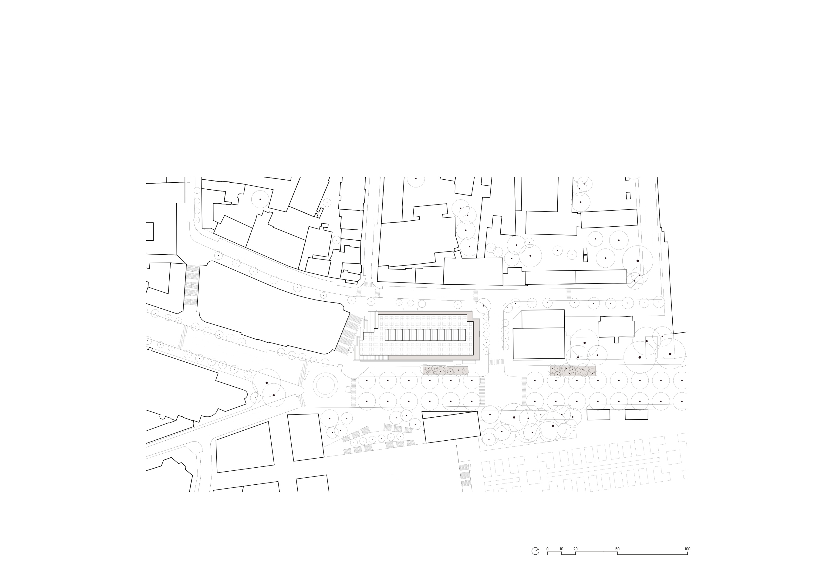
Occupying a key position in Brussels’ medieval center, first in line when taking in the view from the Cité Administrative’s grand esplanade overlooking it, the Belgian Royal Mint has since its construction played a diligent (albeit austere) role articulating the upper and lower quartiers it borders. Indeed it’s uncompromising facades, laser-cut volumes and abstract swathes of polished stone easily grab our attention along this rather arid stretch of the Pacheco Boulevard, forcing a pause. Imagined by architects ARTE in the mid-1970’s, both francs and euros were minted for decades in this modernist oeuvre designed to unequivocally and simultaneously express the illustrious activities going on inside and the mandatory invincibility that goes with them. In effect, arrow slit apertures, dungeon doors and a contemporary take at a primeval portcullis marking the main entrance together do get their no-trespassing point across.

Then in the 2010’s federal authorities decide to sell the ensemble: coins will be minted in a more efficient elsewhere. Befimmo wins the bid, commissioning architectesassoc+ in 2018 to design a “lively light-filled multi-functional hub”. During initial sketches, probes and research, ARTE’s uncompromising architecture looms more bleak than bold. But after careful re-examination at City Authorities’ request, promise of less aloofness is discernable: east along the main facade a restaurant or café could spill out onto the wide sidewalks where more trees could be planted, south the long wide existing flights of stone stairs could create a surprising lived-in Montmartre feel if only the facades overlooking them were animated both day and night-time, and west the tranquil Meiboom street could certainly offer respite from the car-ridden boulevard left behind wandering down those stairs. Thereupon, following extended option-testing ranging from demolition/new-build at one extreme to true-to-original restoration at the other, the final proposal (called option C) purposely lies somewhere in between: a measured move integrating the client’s call for innovative, intensely urban exemplary design AND heritage issues put forth by Authorities.
The two are, in fine, far from adverse.

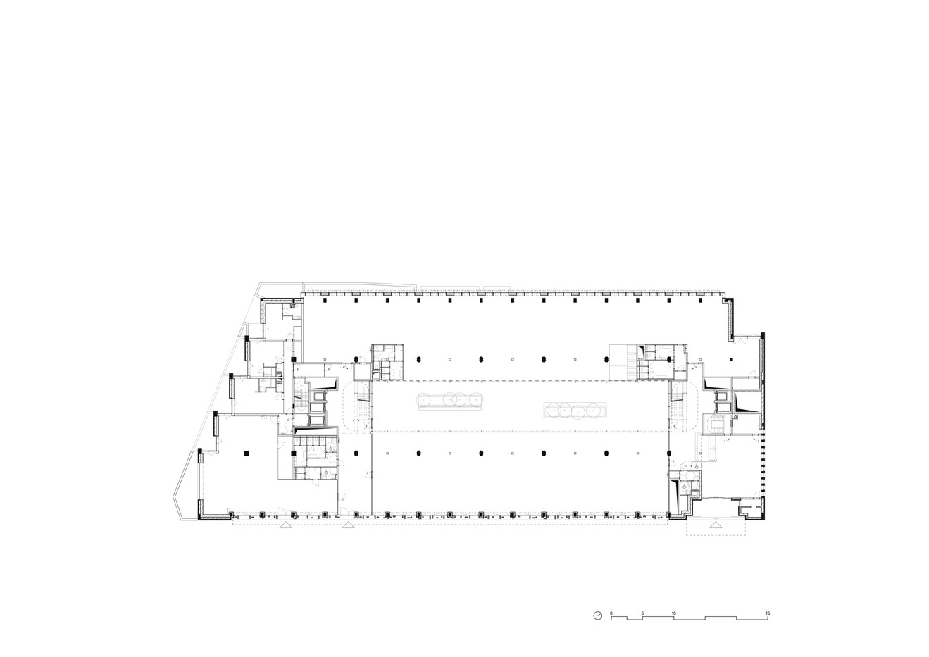
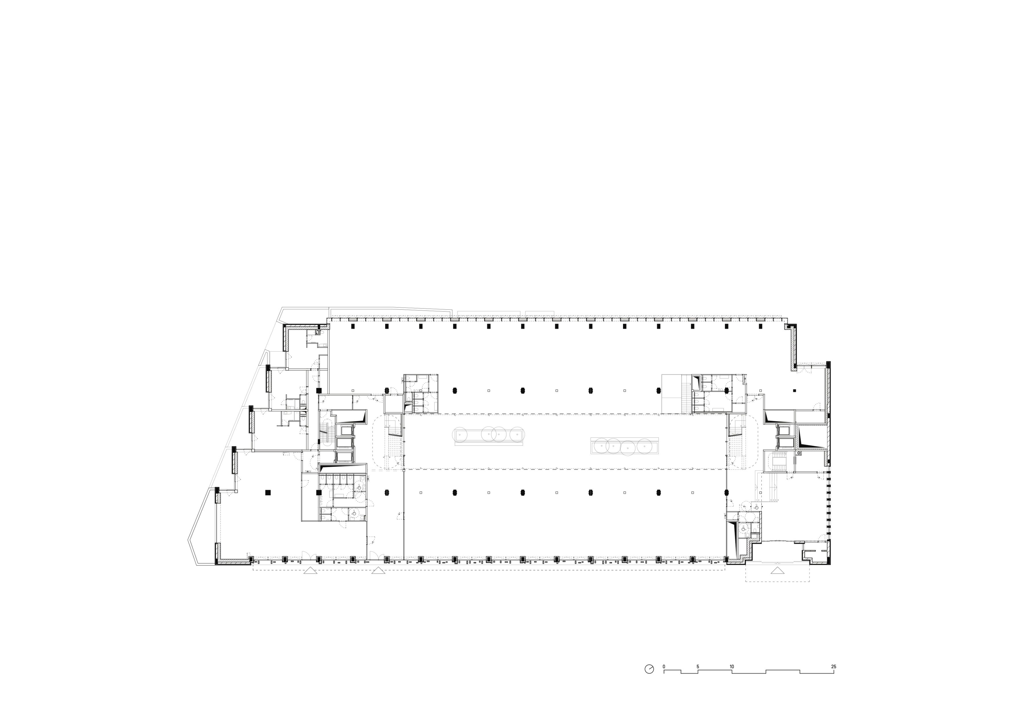
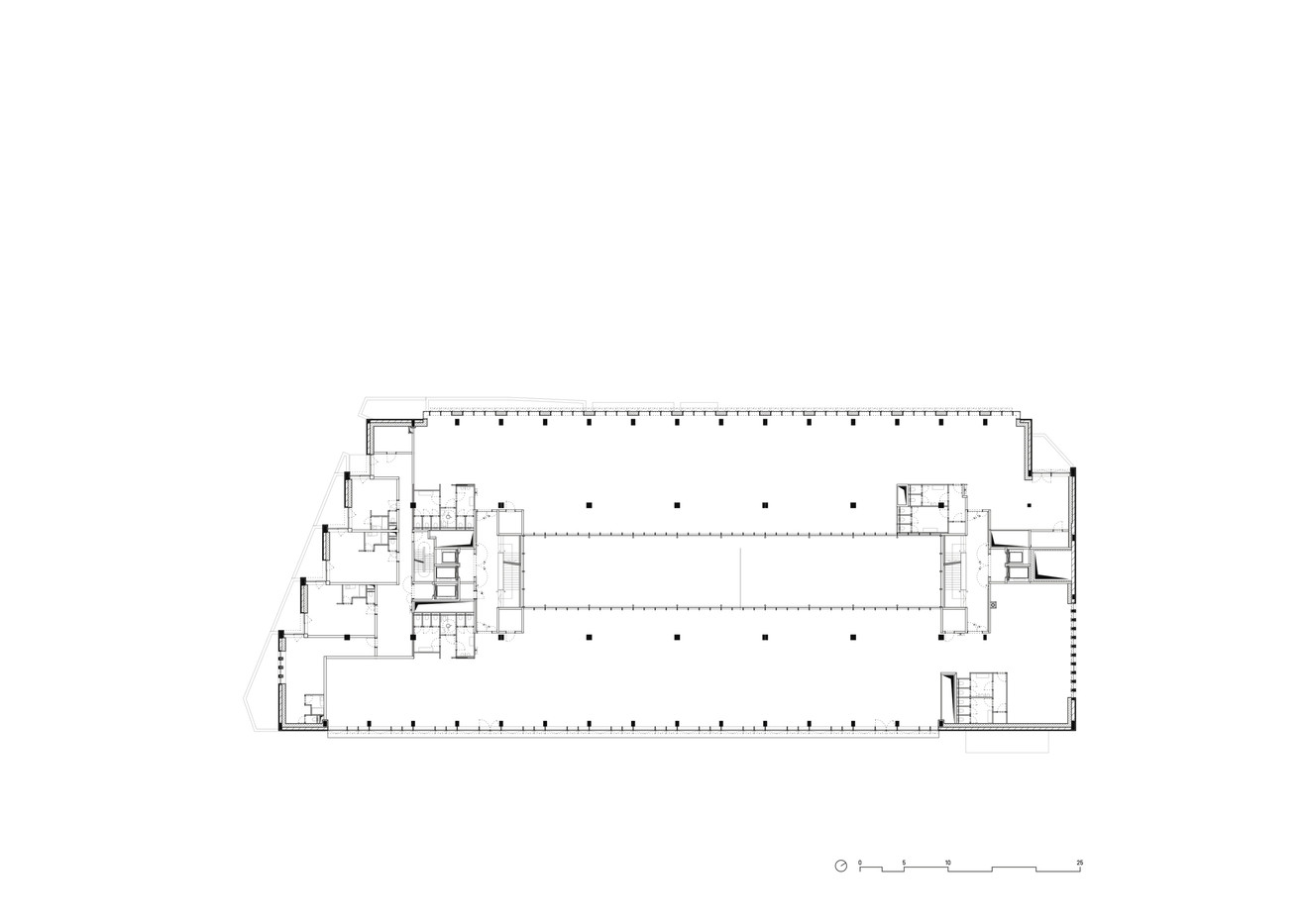
At sidewalk levels interactive touchdowns create interactive animation with the surrounding streetscape, with new apertures for retail and shared entrances carefully but effectively integrated in the barely modified ground floor facades. Only the dullest facade west is seriously modified, but with a consciously restrained and abstract intervention echoing ARTE’s mindset. Inside, flexible workspace is efficiently organized around a high-ceilinged timber atrium carefully carved out of the existing structure devised conjointly with engineers Ney WOW, allowing for minimal interventions on outside skins. Majestic stairs strategically positionned in this light-filled well pull occupants up to rooftop levels under a photovoltaic canopy. Co-living offering an array of different variables neatly slips into the staggered existing volumes along the south-facing stairs, bringing with it the coveted 24/7 vitality. A restaurant and bar brings more, sitting squarely atop those stone stairs on the most visible corner along the Pacheco boulevard. Finally, looking up, a rooftop bar like a lantern as seen from the esplanade mentioned above adds that little bit more to the urban liveliness hoped for.

Turning what seemed like unsurmountable difficulties into clear advantages, the ensemble now reaches low-carbon standards usually met only on new build projects, all parties paying extra attention to material choice, embodied energy and exceptional energy efficiency. The flexible workspace, living space and retail all integrate exemplary circular aspects while concomitantly meeting scrupulous heritage expectations. So more than being far from adverse, these seemingly opposite takes are precisely the ingredients that, thrown together and slow-cooked, create the present Mint’s convivial, avant-garde yet grounded identity.