Unicity

2018 - 2025

Construction of a mixed-use project rue de Hollerith in Luxembourg including offices, housing, retail and public plaza (work in progress)

  • passive
  • residential
  • office
  • equipment
  • refurbishment
  • new build
Site
Rue de Hollerich 19-23 1741 Luxembourg
Client
IKO REAL ESTATE / THOMAS&PIRON LUX
Structural engineering
ICB
Services engineer
BETIC part of SWECO
Acoustics
D2S
Quantity & Quality Surveyor
QBUILD
Health and safety coordinator
PREVENTI-CA
Other contributors
REFLECT - LUXCONTROL - Energie & Environnement
Contractor
THOMAS & PIRON BAU
Surfaces
13 995 sqm above ground level
Budget
n/c € htva

Complete description

A CONTEMPORARY DIALOGUE BETWEEN HERITAGE & URBAN DEVELOPMENT


UNICITY is located on Hollerich Street just 400 meters from Luxembourg train station, in the heart of a neighbourhood undergoing a profound urban transformation.
Set within a complex context of densification and rehabilitation, the project asserts an architecture of dialogue, rooted in the existing environment while remaining fully contemporary.


PROGRAMMATIC MIXITY AND AUTONOMY OF USES


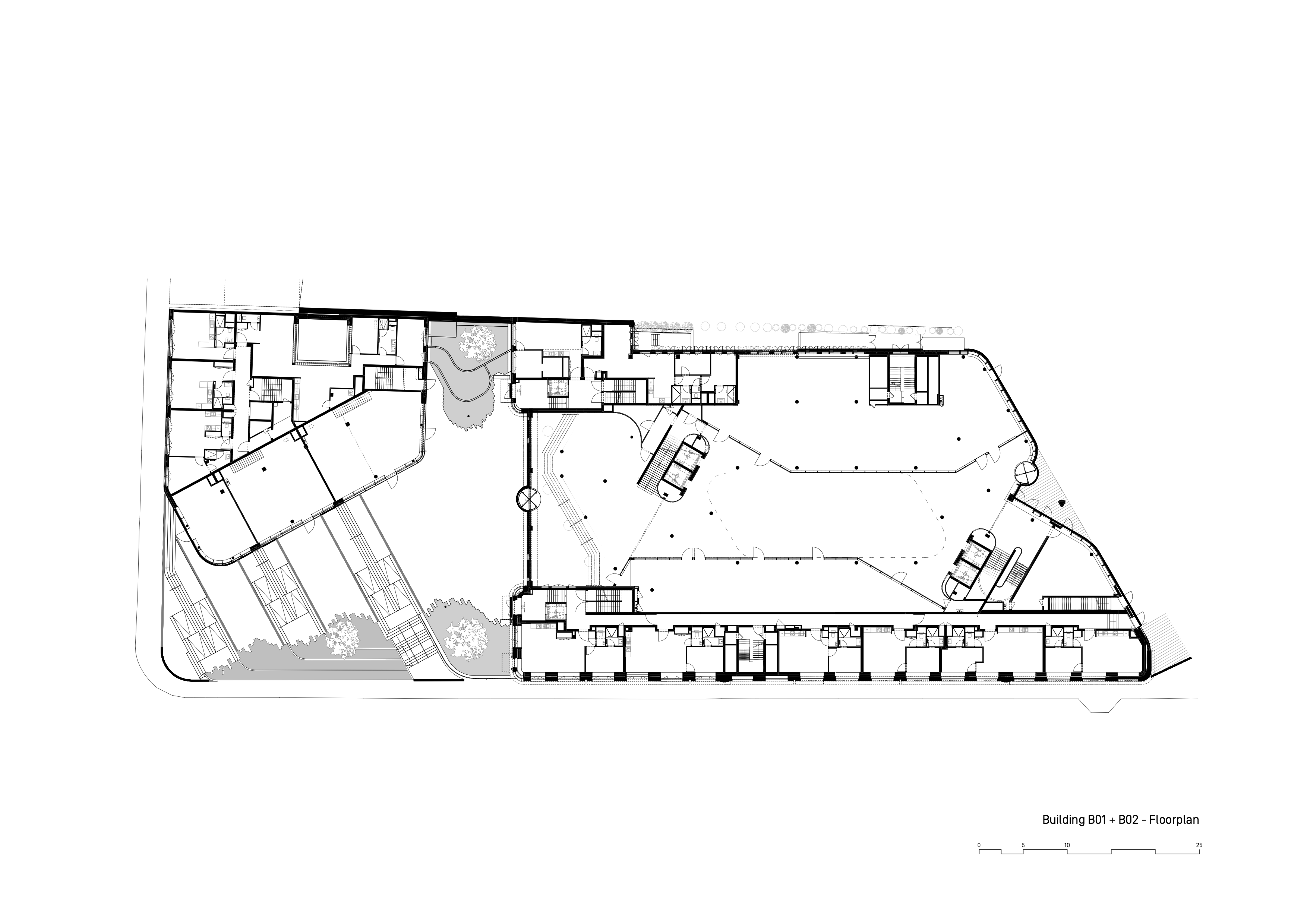
UNICITY is a mixed-use development composed of two buildings combining residential, office, and retail spaces, organized around a new pedestrian forecourt:
• Building B01, along Hollerich Street, accommodates 35 residential units (2,737 m²) and ground-floor retail (471 m²) ;
• Building B02 combines high-end administrative functions (8,720 m²) and 21 residential units (1,983 m²).


THE EXISTING AS AN ANCHOR


The project is developed on a site originally occupied by a 1935 « Art Deco » industrial building, whose façades are listed. Additional non-heritage structures and a surface parking lot were also present.

These industrial façades provide an undeniable base. They carry the memory of a neighbourhood shaped by commercial, manufacturing, and logistical activities. They have been cleaned, restored, re-pointed, and stripped of successive alterations. Our intervention restores the past to exist in the present, serving as the raw material for a contemporary narrative.
BUILDING B02

From this historic base, the project deploys a contemporary extension adopting curved, fluid lines, almost soft, inspired by the Art Deco language of the preserved façades.

The volume was carefully designed to provide terraces at different levels within the administrative section, including a large terrace on the fifth floor.

The contemporary intervention fully assumes its time and its difference. The project asserts a controlled contrast, where old and new are clearly distinguished yet resonate with each other. This approach avoids pastiche while offering a readable evolution of the built environment, maintaining a historical continuity.
PROGRAM ORGANIZATION & FUNCTIONAL MIXITY

Administrative and residential functions operate independently without affecting one another. The apartments in B02 naturally sit behind the preserved façades, ensuring an automatic functional separation.


INTERIOR LIFE: LIGHT & FLEXIBILITY


Office spaces are organized around a central, generously lit atrium, with office floors arranged around it to promote clarity, flexibility, and user comfort.

Two circulation cores consist of large staircases wrapping around curved elevator cores opening onto the sunlit atrium.

The office floors are designed on a 1.35 m grid, enabling a multitude of configurations — from large open-plan layouts to compartmentalized spaces.

The building does not dictate; it enables. It does not impose, but allows its uses to evolve, recombine, and transform.


PREFABRICATED FAÇADES WITH MOTORIZED SUN SHADING


The façades of B02’s administrative section are composed of prefabricated frame panels, factory-built, modular on a 1.35 m grid — some solid with insulation and metal cladding, others glazed.
Every two modules include operable panels for natural ventilation as needed.

Finally, the panels are wrapped in a woven mesh of round and flat anodized golden aluminium, forming vertical, motorized sunshades.

This mesh filters and softens light, shifts tone throughout the day, and gives the building depth.

The curves of the existing façades also influenced the design of the mesh support frames, which are likewise curved. The mesh wraps around vertical tubes. General curves are echoed in panel-level curves. Joints are smoothed to create a continuous texture.

Horizontal bands correspond to the floor levels, echoing those of the existing façades.


TWO BUILDINGS, ONE URBAN LANGUAGE: BUILDING B01


B01’s volume initially aligns with neighbouring buildings before curving and lowering toward the central forecourt, opening perspectives and guiding pedestrian flows. This volumetric adjustment softens the transition between public space and buildings while asserting a strong urban presence.

The residential B01 complements B02. Clad in white glazed brick, it captures light and reflects subtle nuances, providing a luminous counterpoint to the golden volume.

Its curves extend those of the administrative building, as if both had been sculpted by a single gesture.

The golden accents marking each floor are more than structural or aesthetic details; they create a subtle link with B02’s mesh, establishing a quiet but constant dialogue between the two buildings.

This coherence is deliberate — not to uniformize, but to create a shared architectural condition, a landscape capable of supporting a public space. This coherence does not imply uniformity, as each building’s functional expression and distinctive features remain legible within the public realm.

The two buildings are connected by a two-level underground base housing technical infrastructure and parking.


THE FORECOURT AS THE HEART OF THE PROJECT: A LIVED FLUIDITY


The search for coherence between the two buildings shapes a new identity for the forecourt, giving a sense of belonging and continuity.

At the surface, the project frees space formerly dedicated to cars, creating a pedestrian plaza, the true heart of the urban design. Arranged in successive terraces, it absorbs level changes, ensures accessibility, and provides a setting for appropriation by shops and users.

The central plaza is conceived as a continuous surface, with steps flowing into ramps, ramps becoming planted terraces, and landings connecting naturally to retail. Stone and greenery are intertwined, reflecting the fluidity expressed in the architecture of B01 and B02.

Private yet open to the public, this plaza becomes a space of use rather than passage — an urban room where people pause, pass through effortlessly, and perceive the volumetry of both buildings as a continuous dialogue.


A PIECE OF CITY RECLAIMED


By giving space to the existing, sculpting new volumes in resonance with it, and transforming a void into a social space, UNICITY does more than reorganize a block: it mends the urban fabric, restores continuity, and reinstates urbanity where it had weakened.

UNICITY does not aim to reproduce the past nor erase it.

The project proposes another approach: allowing eras to coexist to create a contemporary piece of the city.

An architecture that listens.
An architecture that connects.
An architecture that remembers — while moving forward.